Home
Story
Residences
Highlights
Neighborhood
Contact Us
Home
Story
Residences
Highlights
Neighborhood
Contact Us
Select Floor Plan
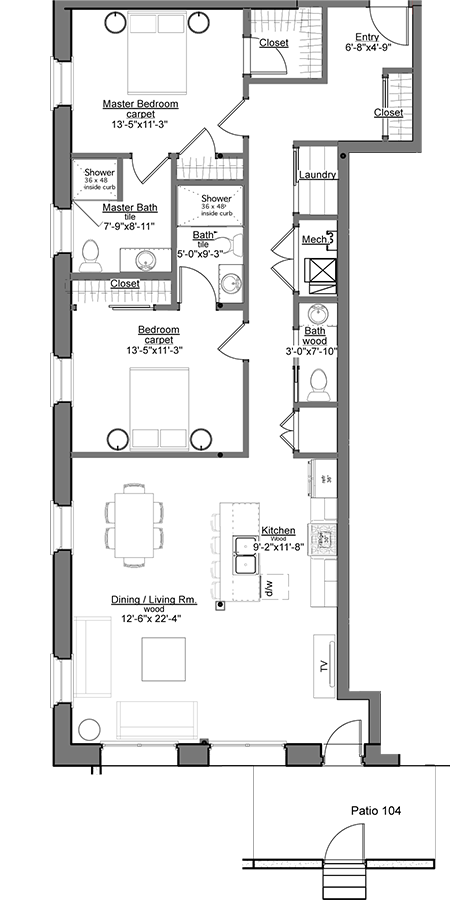
Unit#
104
BEDROOMS
2
BATHS
2.1
INTERIOR
1427
EXTERIOR
112
Schedule Appointment
Download PDF
Download Floorplan
Please fill out your contact information below to download PDF.
Inquirer*
Buyer
Broker / Realtor
First Name*
Last Name*
Email*
Phone*